越谷市弥栄町2丁目新築戸建 2号棟

3,280万円

埼玉県越谷市弥栄町2丁目120-7

東武伊勢崎線「大袋」駅徒歩26分

価格
3,280万円
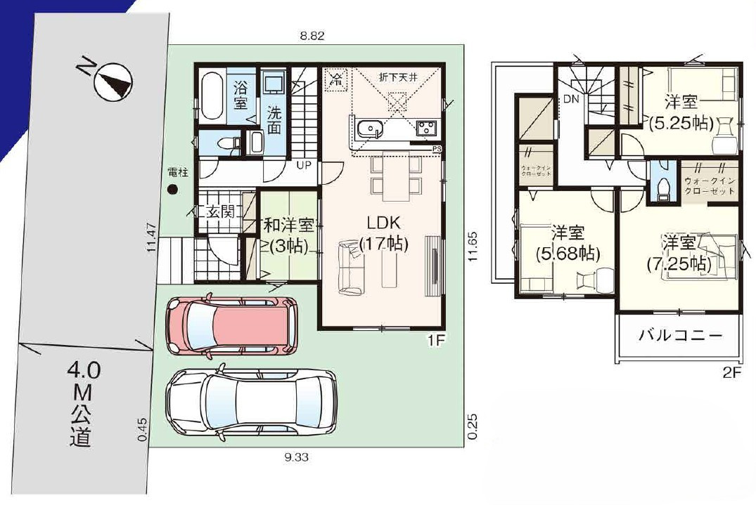
間取り
4LDK
土地面積
101.60㎡
所在地
埼玉県越谷市弥栄町2丁目120-7
交通

東武伊勢崎線大袋」駅 徒歩26分

建物面積
103.95㎡
築年月
2026年3月(予定)

物件の特徴

  • カウンターキッチン

セールスポイント

「越谷市弥栄町2丁目新築戸建 2号棟」のここがイチオシ。快適な環境と機能的な設備のある3,280万円の物件です。キッチンに窓が無いとにおいがこもるので窓付キッチンは便利。シャワー付き洗面台はシャワーが伸びるので洗髪もお掃除もラクラクですよ。マイホームを求めるのであれば、越谷市の東武伊勢崎線大袋周辺をご検討ください。きっと充実した暮らしを送ることができるでしょう。

ポイント

3口以上コンロ シューズボックス 接道幅10m以上 システムキッチン フローリング

担当者のコメント

こだわりで選びたい方におすすめ。越谷市エリアで住まいをお探しなら「越谷市弥栄町2丁目新築戸建 2号棟」。徒歩11分の場所に越谷市立弥栄小学校があります。建物面積は103.95㎡です。よく家で料理をするという方に嬉しいシステムキッチン付きの物件。東武伊勢崎線大袋周辺の住まい探しはお任せください。不動産情報だけではなく、地域情報についてのご質問なども承っております。

基本情報

販売戸数
-
総戸数
-
間取り / 詳細
4LDK
LDK 17.0帖/洋室 7.5帖/洋室 6.1帖/洋室 5.2帖/洋室 5.0帖
向き
北東
建物面積(坪数)
103.95㎡(31.44坪)
土地面積(坪数)
101.60㎡(30.73坪)
建ぺい率 /
容積率
60%/100%
築年月
2026年3月(予定)
駐車場 /
月額料金
有(2台) -
土地権利
所有権
土地
(敷金 / 保証金)
- / -
建物構造
木造 / 2階建
傾斜地部分面積
-
路地状敷地
-
私道負担面積
-
セットバック
記載なし
高圧線下面積
-
施工会社
-
用途地域
第一種低層住居専用
地目 / 地勢
宅地 / -
接道状況
一方(北東 公道 6.0m 間口 11.0m)
国土法届出要否
不要
都市計画
市街化区域
総区画数 /
販売区画数
-/-
現況
未完成
その他
法令上の制限
-
取引態様
仲介
引渡し
相談
取引条件の
有効期限
2026年01月29日

設備条件

設備条件
  • 陽当り良好 / 閑静な住宅地 / フローリング / バルコニー / 都市ガス / 公営水道 / 公共下水 / 2面バルコニー / 駐車2台可 / システムキッチン / カウンターキッチン / 温水洗浄便座 / トイレ2ヶ所
設備(その他)
    -

その他

物件番号
99475084
管理コード
3041
建築確認番号
第HPA-25-11161-1号
情報更新日
2026年01月15日
次回更新予定日
2026年01月29日
取扱会社
  • 株式会社イーグルハウジング
  • 埼玉県越谷市赤山町5丁目9-11 
  • TEL:0120-09-1196
  • 埼玉県知事 (3) 第22717号
  • 公益社団法人 全国宅地建物取引業保証協会
    公益社団法人 全国宅地建物取引業保証協会埼玉本部
備考
東武伊勢崎線大袋駅周辺への引っ越しをお考えなら「越谷市弥栄町2丁目新築戸建 2号棟」。通学区域の小学校は越谷市立弥栄小学校徒歩11分。システムキッチン付きの物件です。お客様によって希望条件は異なります。当社ではお客様個人のご希望をお伺いし、それにマッチした不動産をご紹介致しております。まずはスタッフまでご希望をお申し付けください。

周辺施設

  • 越谷市立新栄中学校の画像

    中学校

    越谷市立新栄中学校

    468m(6分)

  • ドラッグストアマツモトキヨシ 弥十郎店の画像

    ドラッグストア

    ドラッグストアマツモトキヨシ 弥十郎店

    544m(7分)

  • セブンイレブン 越谷弥十郎店の画像

    コンビニエンスストア

    セブンイレブン 越谷弥十郎店

    589m(8分)

  • アスナロ幼稚園の画像

    幼稚園

    アスナロ幼稚園

    756m(10分)

  • 越谷市立弥栄小学校の画像

    小学校

    越谷市立弥栄小学校

    836m(11分)

  • 新方保育所の画像

    保育園

    新方保育所

    876m(11分)

  • ロピア 越谷大里店の画像

    スーパー

    ロピア 越谷大里店

    1087m(14分)

支払いシミュレーション

月々の支払額
9.6
購入希望物件価格
万円
頭金
万円
金利
%
返済額(ボーナス1回分)
万円
返済期間

※ボーナスは自動で年2回分で計算されます。

近隣の物件

  1. 越谷市千間台西6丁目 新築戸建

    越谷市千間台西6丁目

    3LDK (112.79㎡)

    5,098万円

  2. 越谷市宮本町3丁目 新築戸建

    越谷市宮本町3丁目

    3LDK (77.00㎡)

    3,680万円

  3. 越谷市東越谷6丁目 新築戸建

    越谷市東越谷6丁目

    4LDK (95.11㎡)

    3,999万円

  4. 越谷市弥栄町2丁目新築戸建 1号棟

    越谷市弥栄町2丁目

    4LDK (105.55㎡)

    3,280万円

越谷市弥栄町2丁目新築戸建 2号棟

越谷市弥栄町2丁目新築戸建 2号棟

3,280万円

-

4LDK(103.95㎡)

お気軽にお問い合わせください

LINEからお問い合わせ 無料お問い合わせ

株式会社イーグルハウジング

0120-09-1196

9:30~18:30

(休:水曜日)